Villa all'asta , Formia

Offerta Minima € 270.000

Lazio Latina Formia

Via Spiaggia di Piscinola

Villetta - Via Spiaggia di Piscinola
Rif.: 1540-LT20511

  • Asta
  • Contratto
  • 189 m²
  • Superficie
  • 5
  • Locali
  • 3
  • Camere
  • 2
  • Bagni
  • N.D.
  • Classe Energetica
  • Lazio
  • Regione
  • Latina
  • Provincia
  • Formia
  • Comune
  • Formia
  • Località

Villetta, porzione di fabbricato bifamiliare con 2 piani fuori terra e annessa corte esclusiva

Immobile posto in vendita dal Tribunale. Vieni a scoprire la possibilità di acquistare prima dell'asta. Annuncio finalizzato alla vendita del servizio di assistenza per un acquisto sicuro e conveniente.

Caratteristiche

Piano: Multipiano - piani edificio: 2

Foto

Villetta - Via Spiaggia di Piscinola - 1
Villetta - Via Spiaggia di Piscinola - 2
Villetta - Via Spiaggia di Piscinola - 3
Villetta - Via Spiaggia di Piscinola - 4

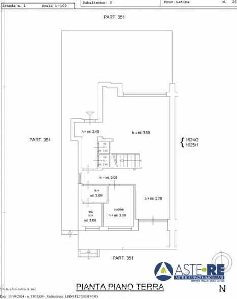
Planimetrie

Villetta - Via Spiaggia di Piscinola - 1
Villetta - Via Spiaggia di Piscinola - 2

Mappa

Newsletter Immobiliare

Ricevi le nostre proposte immobiliari direttamente nella tua email!